Description du bien

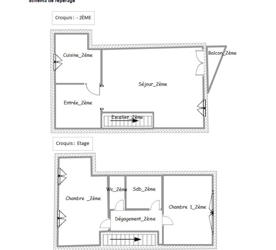
Réf 402539 - Dans une copropriété de 9 logements situés au 31 rue de l'hôtel de Ville à Retournac, appartement en duplex de type T3 de 61,45 m² au 2ème étage.
Double vitrage, chauffage collectif Fioul - vendu avec une cave.
Prévoir travaux de rafraîchissement.
DPE D soit 198 kWh/m²/an GES D soit 33 kg CO2/m²/an.
Montant estimé des dépenses annuelles d'énergie pour un usage standard : entre 1120 € et 1560 € par an. Prix moyens des énergies indexés sur les années 2021,2022, 2023 (abonnements compris).
Taxes foncières 639 €.
Charges de copropriété : 180 € / mois (chauffage compris)
Pas de frais d'agence.
Renseignements et visite au 04.84.31.13.04 - alliade@serenis.fr
Priorité des offres conformément aux dispositions de l'article L443-11 du CCH relatif aux ventes de logements sociaux. Les informations sur les risques auxquels ce bien est exposé sont disponibles sur le site Géorisques : www.georisques.gouv.fr
Voir plus
Voir moins
31 rue DE L'HOTEL DE VILLE .
43130 Retournac
Surface carrez
59 m2
Étage
2 sur 2
Nombre d'appartements
3
Type de chauffage
individuel
Nombre de pièces
3
Copropriété
Oui
Ce bien vous intéresse ?
Vue liste Vue carte
Ce bien vous intéresse ?

Contactez la personne ci-dessus ou formulez votre demande ci-dessous

« * » indique les champs nécessaires

Ce champ est masqué lorsque l‘on voit le formulaire.
Ce bien m'intéresse